ZLATÝ LIHOVAR

2020 DÚR 2021/2022 DSP 2022 DPS 2022 STAVBA

ARCHITEKTONICKÝ NÁVRH: BLACK N‘ ARCH, s. r. o.

Řešené území bylo před transformací zastavěno areálem bývalého smíchovského (zlíchovského) lihovaru. Jedná se o ucelený a prostorově ohraničený areál, v němž byl v roce 2000 úplně ukončen provoz. Většina objektů byla bez využití. Předmětem dokumentace bylo řešení transformace areálu Zlatý lihovar s cílem umístit zde bytovou výstavbu doplněnou o občanskou vybavenost v parteru včetně potřebné nové technické a dopravní infrastruktury.

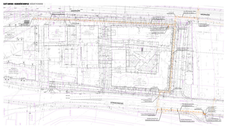
Naše kancelář Růžička a partneři s.r.o. zpracovávala napojení areálu na veřejné inženýrské sítě (vodovod, kanalizaci a plynovod) a s tím související přeložky části veřejných sítí, nové sítě a retenci a akumulaci dešťových vod.
V rámci DÚR byla zpracována Studie principu vytápění a topného zdroje a byly navrženy přeložky a nové trasy veřejné jednotné kanalizace, veřejného pitného vodovodu a veřejného středotlakého plynovodu. Zpracována byla též PD staveništní přípojky vody a staveništní přípojky kanalizace. RaP dodala do souhrnné technické zprávy texty týkající se přípojek vodovodu, kanalizace a plynovodu a dále retence a akumulace srážkových vod a také odlučovače tuků. Areál sestává z objektů A až G, K a ze stávající varny. Tyto objekty byly rozděleny do tří etap: Sever (F, G), Střed (D, E, K, varna) a Jih (A, B, C). Časově postupují projekční práce i výstavba od severu k jihu.
V rámci DSP a DPS RaP zpracovávala:

Etapa Sever - nová stoka veřejné jednotné kanalizace, nový řad veřejného vodovodu, nový STL plynovod (vč. přeložky), přípojky kanalizace, vodovodu a STL plynovodu, retenční a akumulační nádrže srážkových vod, zdroj tepla a chladu (TČ, vrty), řezy kotev a vnějších inženýrských sítí.

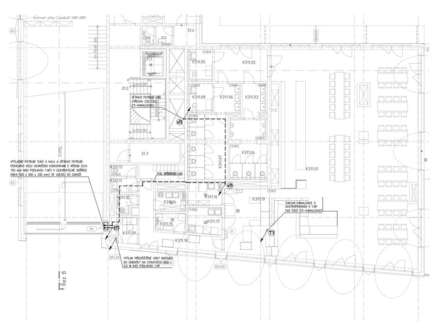
Etapa Střed - přípojky kanalizace a vodovodu, retenční a akumulační nádrže srážkových vod, zdroj tepla a chladu (TČ, vrty), odlučovač tuků (lapol).

Etapa Jih - přeložka kanalizace, přeložka vodovodu, přeložka přípojky vody a přesun vodoměrné šachty čerpací stanice pohonných hmot.

INVESTOR


Trigema Projekt Smíchov, s. r. o.

ARCHITEKTONICKÝ NÁVRH


BLACK N‘ ARCH, s. r. o.

HIP A STAVEBNÍ ČÁST


Arch.Design s.r.o.