USEDLOST CIBULKA

2023 STUDIE 2024 DUR + DSP 2026 PLÁNOVANÉ DOKONČENÍ STAVBY

ARCHITEKTONICKÝ NÁVRH: Petr Hájek ARCHITEKTI, s.r.o.

Usedlost Cibulka se nachází v klidné čtvrti Praha – Košíře. Historie usedlosti sahá až do 14. století, v 19. století prošla usedlost radikální přestavbou a od 20. století, až do současnosti, chátrá. Cílem nových majitelů, kterými je Nadace rodiny Vlčkových, je revitalizace celého areálu a oprava všech objektů usedlosti a jejich doplnění o jeden nový objekt tak, aby vzniklo místo, které bude sloužit jako Centrum dětské komplexní péče s paliativním přístupem.

Cílem projektu je kompletní rekonstrukce vnějších i vnitřních prostor, vč. zajištění bezbariérového přístupu do areálu, ale i do všech budov. Současné požadavky mají vliv na nárůst technologií, které byla snaha umístit v maximální možné míře tak, aby nerušily ráz areálu a neubíraly cenný prostor, který bude využíván dětskými pacienty a jejich rodinami. Veškeré úpravy mají sloužit pro vytvoření vhodných podmínek nejen pro pacienty a jejich rodiny nebo návštěvnickou veřejnost, ale i pro zaměstnance.

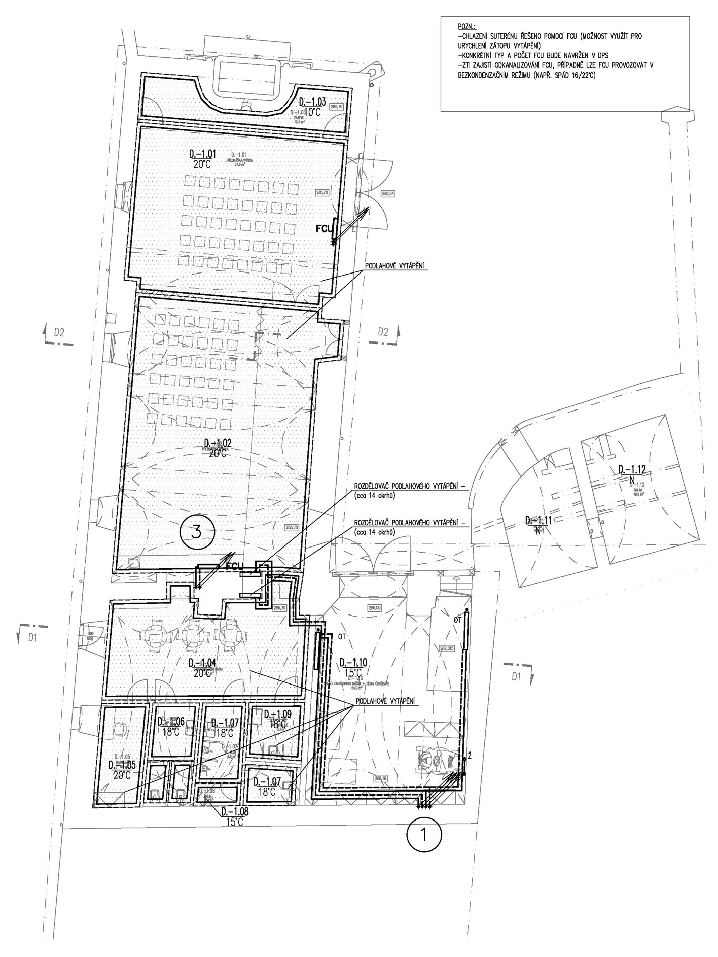
Součástí návrhu jsou v současné době standardní technická řešení, zde ale v omezené ploše a v památkově chráněném areálu obtížně realizovatelná zařízení pro vytápění a chlazení (tep. čerpadla vzduch – voda v kombinaci s lanovými kotli, retence a akumulace se zpětným využitím dešťové vody v areálu i nová trafostanice a dieselagregát).

Projekt a stavba tak obsahuje kombinaci rekonstrukce památkových objektů a nového moderního pavilonu pro ubytování pacientů s moderními technologiemi vč. oBKT systému vytápění a chlazení ve vazbě se systémem nuceného větrání všech prostor s kontrolou kvality vnitřního klimatu. Celý projekt, který je zasazen do stávající parkové zeleně musí ale poskytovat klientům kontakt s tímto unikátním klidným, vnějším prostředím téměř v centru Prahy.

Naše kancelář Růžička a partneři s.r.o. zajišťuje v současné době přípravu projektu, průzkumné práce pro přípravu projektu, projektovou dokumentaci areálových inženýrských sítí, včetně přípojek pro areál a přípravu i koordinaci profesí TZB.

KLIENT


Nadace rodiny Vlčkových

ARCHITEKTONIKÝ NÁVRH


Petr Hájek ARCHITEKTI s.r.o.

HIP STAVBY, STAVEBNÍ ČÁST A KOORDINACE


NĚMEC POLÁK, spol. s.r.o.

SPOLUPRÁCE


elektroinstalace silnoproud objekty A, B, D, F: JEKU
elektroinstalace silnoproud objekty C a areál: Ing. Pavel Znamenáček

elektroinstalace slaboproud, EPS, EZS, ERO: Forgys spol. s r.o.

přípojka VN a trafostanice: Bachs s.r.o.
průkaz energetické náročnosti budov, Vzduchotechnika a chlazení: DEKPROJEKT s.r.o.
měření a regulace: Pavel Valášek
závlaha: DEKPROJEKT s.r.o.
bazénová technologie: Bazény a wellness s.r.o.
doprava: Dopas
hluková studie: Komprah s.r.o.
PBŘ: Ing. Jan Ráb
gastro: Viewegh Gastro Team