RODINNÝ DŮM HUSINEC

2017 STP 2018 DUR + DSP 2021 DPS 2023 ZSPD

ARCHITEKTONICKÝ NÁVRH: A69 – architekti s.r.o.

Dokumentace řeší rozsáhlou přestavbu a přístavbu stávajícího rekreačního objektu na rodinný dům. Součásti řešeného celku je jak vlastní stavba, tak napojení na stávající inženýrské sítě a realizace nového zdroje vody formou vrtané studny. Jedná se o individuální návrh dle detailních požadavků klienta zpracovaný ve spolupráci s architektonickým studiem A69 – architekti s.r.o. Návrh si vyžádal i speciální konstrukční řešení na straně výrazných konzol střechy objektu.
Stavební úpravou a přístavbou vznikne stavba obdélníkového půdorysu, která je zasazena do svažitého terénu řešené parcely a včleňuje do svého půdorysu i výškového řešení ponechanou část původní stavby rekreačního objektu. Stavba má polozapuštěné 1.PP a plně zapuštěný bazén v interiéru. Nad terénem je pak kompletně 1.NP. Objekt je zastřešen plochou střechou, která má jižním směrem výrazný přesah a tvoří zakrytí terasy 1.NP. Střešní krytina je tvořena střešní fólii. Fasáda objektu v úrovni 1.NP je navržena atypicky formou fasádních desek, tj. realizována jako provětrávaná. Fasáda 1.PP je pak ze standardního zateplovacího kontaktního systému.
Stavební úpravou s přístavbou vznikne rodinný dům zasazený do stávajícího svažitého terénu a lehkého nevšedního vzhledu s hlavním výhledem směrem k údolí řeky Vltavy. Stavba nebude přesahovat okolní stavby a je umístěna v dostatečné vzdálenosti od okolních staveb.
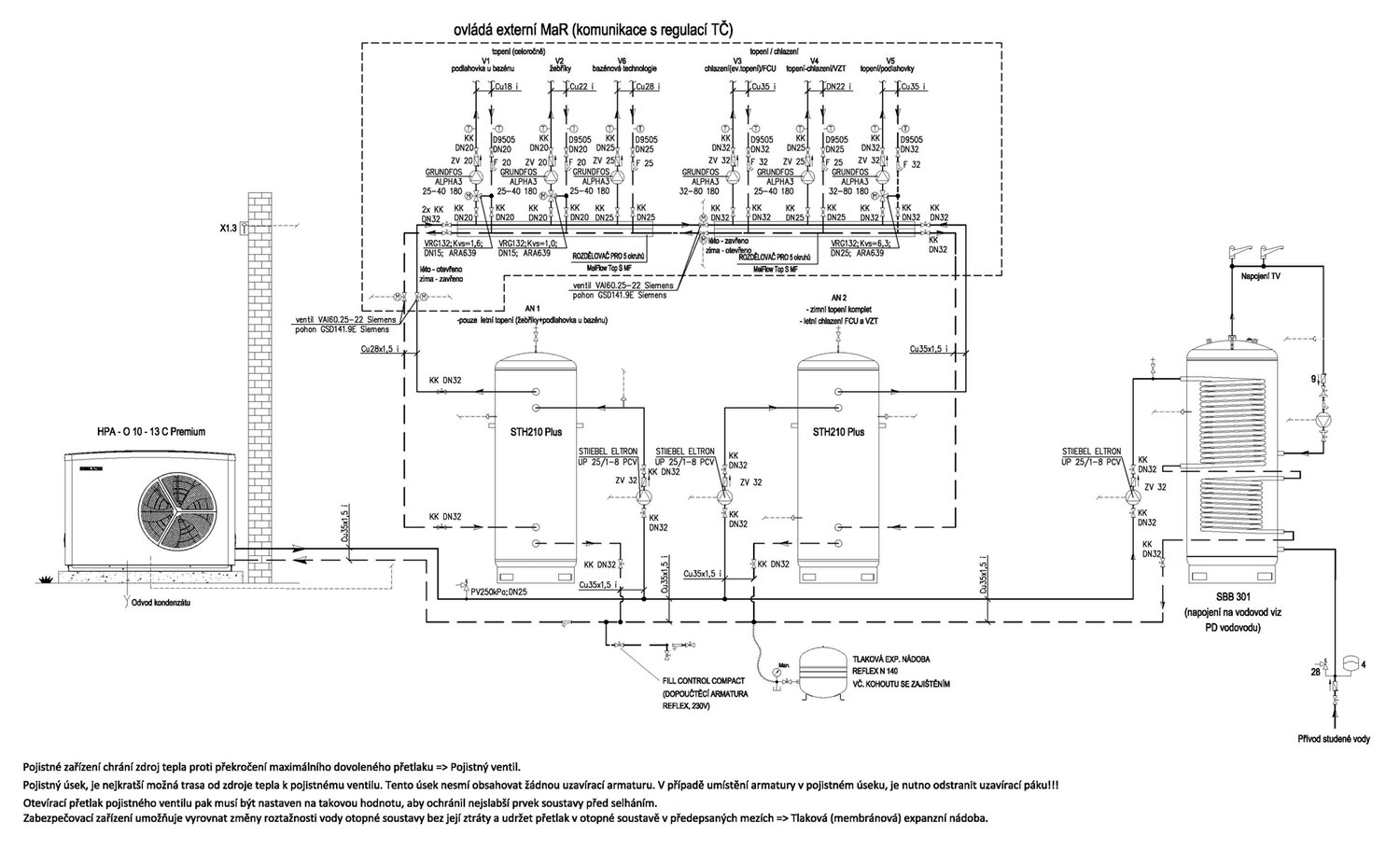
Zdrojem pro vytápění a chlazení je vzduchové tepelné čerpadlo umístěné mimo stavbu, které tak nenarušuje charakter stavby. Vytápění objektu je pak zajištěno podlahovým vytápěním. Objekt má vlastní ČOV a vlastní zdroj pitné vody formou nové vrtané studny. Likvidace srážkových vod je řešena rovněž na vlastním pozemku.

Naše kancelář Růžička a partneři s.r.o. zajišťovala kompletní projektovou dokumentaci jako generální projektant, zajišťovala kompletní inženýrskou činnost, zpracovala veškeré koordinační části projektové dokumentace (souhrnné zprávy, situace), projektovala architektonicko-stavební řešení, ZTI, vytápění, chlazení, ČOV a úzce spolupracovala na rozpočtu stavby.

KLIENT


soukromá osoba

ARCHITEKTONICKÝ NÁVRH


A69 – architekti s.r.o.

SPOLUPRÁCE


stavebně konstrukční řešení: statická kancelář BETA, Ing. Jan Tatoušek
požární řešení: Ing. Jiří Ledinský
vzduchotechnika: Ing. Miroslav Rathouský
elektroinstalace: ELEKTROPRO, Aleš Svoboda, Draconis s.r.o., Miroslav Hříbal
MaR: Pavel Valášek
bazénová technologie: IDOL SPAS, s.r.o., BAZÉNY A WELLNESS s.r.o.
úpravna vody: AQUA Cleer s.r.o., Vlastimil Jankovský