PŮDNÍ VESTAVBA VEVERKOVA

2001 STUDIE, PSP

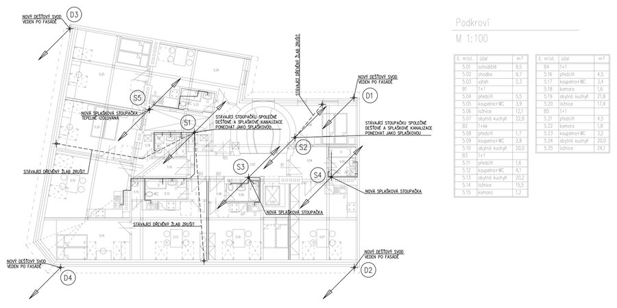
Půdní vestavba pěti mezonetových bytových jednotek v městské památkové zóně je řešena s částečným zachováním stávajícího dřevěného krovu. Součástí stavby je vestavba hydraulického výtahu, výměna domovních rozvodů a rekonstrukce přípojek. Projekt byl vypracován jako kompletní dodávka stavební a statické části i profesí TZB. Součástí bylo provedení zaměření a pasportizace celého objektu, potřebných průzkumů, studií a inženýrská činnost do vydání stavebního povolení. Stavba byl zrealizována a zkolaudována klientem v roce 2002.

KLIENT


DAVID AM s.r.o.

SPOLUPRÁCE


statika: Ing. J. Černý
VZT: Ing. K. Havlík