PŮDNÍ VESTAVBA VELEHRADSKÁ

2003 PSP, RPS 2004 KOLAUDACE

ARCHITEKTONICKÝ NÁVRH: Alternative Architekture Building s.r.o.

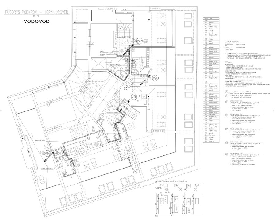
Půdní vestavba sedmi mezonetových bytových jednotek s terasou v ochranném pásmu památkové rezervace UNESCO je řešena do nově navrženého ocelového krovu. Součástí stavby je vestavba hydraulického výtahu a výměna domovních rozvodů.

Kompletní koordinace projektových prací, projekt stavební části vč. konstrukčního řešení a TZB (vodovod, kanalizace, plynovod, vytápění a elektro) v půdní vestavbě je doplněn o projekt celkové rekonstrukce NTL plynovodu v objektu, rekonstrukci vnitřního vodovodu a vnitřní kanalizace.

KLIENT


BM DEVELOP s.r.o.

ARCHITEKTONICKÝ NÁVRH


Alternative Architekture Building s.r.o.

SPOLUPRÁCE


ocelové kce: MALCON s.r.o.
statika: J. Pergler
VZT: Ing. K. Havlík
mykologie: Ing. Z. Lukešová
slaboprooud: PROIS s.r.o.