NOVÁ LIBOC

2002 STUDIE, DÚR 2003 PSP 2007 DOKONČENÍ STAVBY

ARCHITEKTONICKÝ NÁVRH: Ing. akad. arch. J. Kosek, Ing. arch. J. Koza

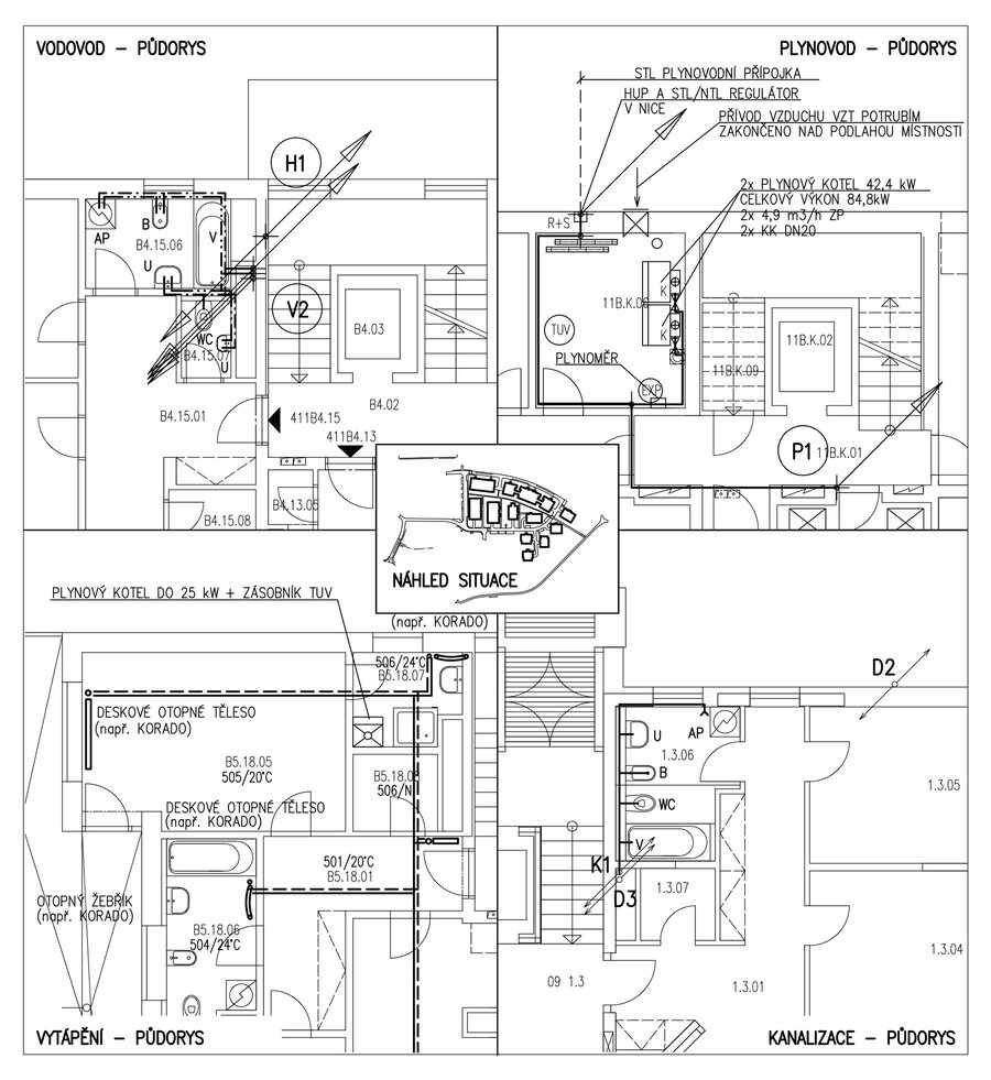
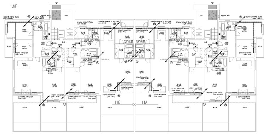
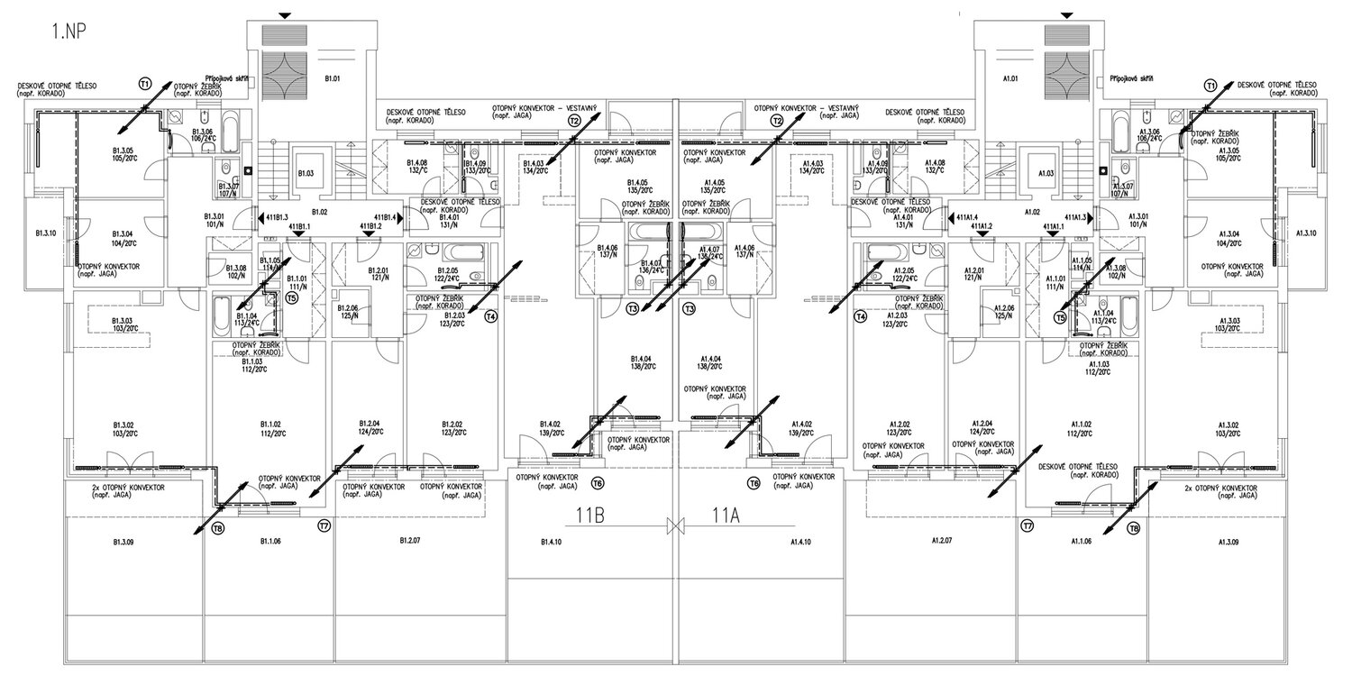
Rezidenční čtvrť Nová Liboc je areál 13 obytných domů se 186 byty různého standardu určenými na prodej do osobního vlastnictví. Stavební objekty zahrnují jednotlivé obytné domy, komunikace, terénní úpravy včetně zeleně, inženýrské sítě, protihlukovou stěnu u tělesa ČD (rychlodráha na letiště), výstavbu podzemních retenčních objektů s vírovými ventily pro zaústění dešťové kanalizace do Litovického potoka a další stavební objekty nezbytné pro funkční využití předmětného území.

Naše kancelář Růžička a partneři s.r.o. zajišťovala technickou koordinaci zpracování PD ve všech stupních, přípravu celkové koordinační situace stavby, projekty profesí (veřejná splašková a dešťová kanalizace, veřejný plynovod, veřejný vodovod a vnitřní rozvody kanalizace, vody, plynu a vytápění) a doprovodné studie (hluková studie k ČD, stavbě a dopravě, rozptylová studie a energetický audit areálu).

KLIENT


ING First Real Estate Development s.r.o.

ARCHITEKTONICKÝ NÁVRH


Ing. akad. arch. J. Kosek, Ing. arch. J. Koza

STAVEBNÍ ČÁST


Archikon A

SPOLUPRÁCE


komunikace: Atelier Promika
elektro: Electradesign
VZT: Projekční kancelář vzduchotechnika – hluk, Ing. K. Havlík, Ing. M. Rathouský
požární zabespečení: Ing. I. Muziková
statika: CHS - Ing. P. Bradáč