MULTIFUNKČNÍ HŘIŠTĚ PRO ŠKOLNÍ ZAŘÍZEÍ ZŠ A SŠ MODRÁ ŠKOLA

2013 DSP, DPS

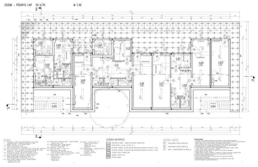
V areálu Základní a Střední školy Kupeckého 576 v Praze bylo navrženo nové sportovní zázemí pro školu. Zázemí je tvořeno dvěma hřišti pro malou kopanou, hřištěm pro fotbal v kleci, budovami zázemí a klubovny. Nový areál byl doplněn o komplexní řešení zeleně a dále o byl zpřístupněn pro dopravu tak, aby bylo možno areál případně využít i pro veřejnost. Budovy zázemí a klubovny jsou navrženy jako co nejjednodušší stavby ze stavebních buněk. Zázemí má dvě podlaží a je schopno zároveň pojmout dvě sportující třídy o 32 žácích. Do objektu bylo navrženo i veškeré technické zázemí, pohotovostní WC a místnost pro správce. Klubovna je navržena jako místo pro týmové porady a schůzky. Sportovci se zde zároveň mohou lehce občerstvit. Klubovna je doplněna o dřevěnou terasu - palubu, která bude mít využití především v teplých měsících.

Naše kancelář Růžička a partneři s.r.o. zajišťovala koordinaci celého projektu, zpracovávala architektonicko-stavební část, zajišťovala konstrukčně stavební část, sadové úpravy, dopravní řešení a návrh technologie hřišť, a projektovala TZB v objektech a vnitřní a vnější inženýrské sítě.

KLIENT


Městská část Praha 11, Ocelíkova č.p. 672, Praha 4, 142 00

SPOLUPRÁCE


dopravní řešení: AF-CityPlan
dendrologie: Flera s.r.o.
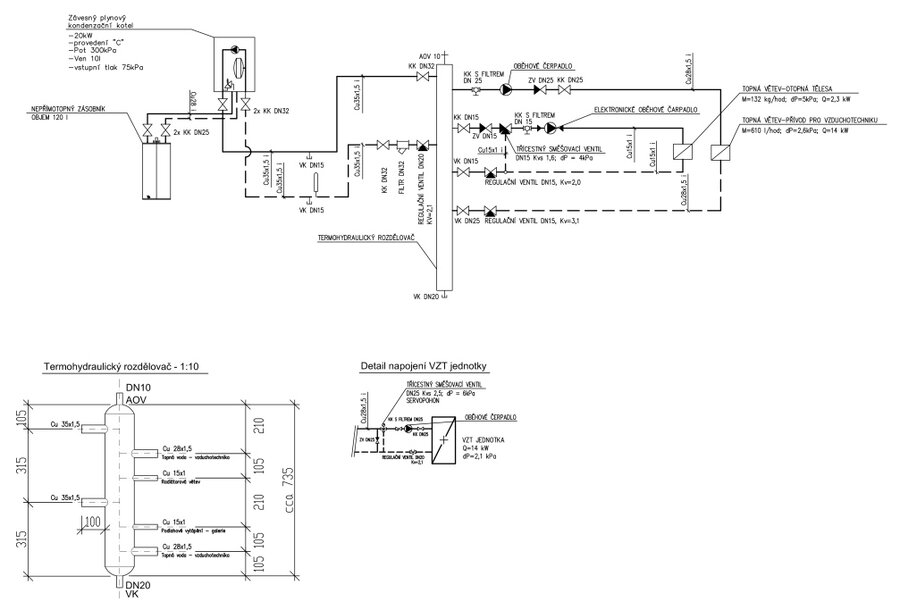
VZT: Projekční kancelář vzduchotechnika – hluk, Ing. Miroslav Rathouský
PBŘ: Ing. Hana Menclová, PhD.