MATEŘSKÁ ŠKOLA DRAHELČICE

2017 DÚR, DSP 2019 DPS

ARCHITEKTONICKÝ NÁVRH: Starý a partner s.r.o.

Návrh nové mateřské školy vychází z historického vzhledu původního objektu sýpky, tj. dvoupodlažní zděný dům na obdélném půdorysu s rozměry 42x10m s valbovou střechou z keramických tašek typu bobrovka. Objekt musel být z důvodu nutného souladu s historickým vzhledem původní stavby v podstatě kopií původní sýpky, která nemohla být ze stavebně-statických důvodů zachována.
Nový objekt mateřské školy zachovává tak v co největší míře původní charakter stavby.
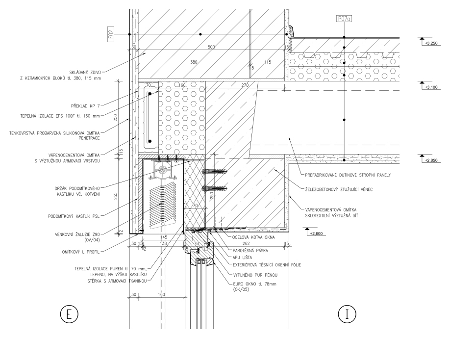
Půdorysné rozměry objektu jsou rozšířeny směrem do dvora o 300 – 600mm, celkové rozměry jsou 10,5x42,3m včetně soklu. Sklon střechy a typ střešní krytiny je shodný s původní stavbou. Výška stavby je z důvodu dodržení požadovaných konstrukčních výšek zvednuta o cca 800 mm. Tři ze čtyř fasád, které jsou orientovány na veřejné prostranství, jsou navrženy dle původního charakteru stavby, tj. malá okna v pravidelném rastru se šambránou. Čtvrtá fasáda je orientována směrem do dvora, kde se nachází hlavní vstup do objektu a zásobování. Tato fasáda je navržena s ohledem na normově požadované denní osvětlení provozních místností (tříd) školky.
V objektu se nacházejí 3 třídy mateřské školy, každá pro 24 dětí a dále provozní zázemí a provoz gastro. Vstup do objektu je z areálu v návaznosti na dopravní řešení. Zásobování kuchyně je řešeno samostatným vstupem. V přízemí se nachází jedna třída pro 24 dětí, která slouží jako polyfunkční prostor pro hraní, stravování i spaní na mobilních lehátkách. Dále je součástí oddělení šatna, hygienické zázemí, sklad lehátek a lůžkovin a výdejna jídel. Takto jsou řešené i další dvě oddělení nacházející se ve 2.NP, které je přístupné po schodišti i výtahem. V pravé části přízemí se nachází provozní zázemí objektu, tj. kancelář ředitele a hospodářky, hygienické zázemí, úklidová místnost, prostory pro praní a skladování lůžkovin, technická místnost a provoz gastro se samostatným vstupem. Provoz slouží pro přípravu obědů a svačinek, které jsou následně rozváženy přes výdejny jídel do každého oddělení. Kromě kuchyně pro přípravu a skladovacích prostor se v této části nachází zázemí pro zaměstnance gastroprovozu, technické místnosti a odpadové hospodářství.
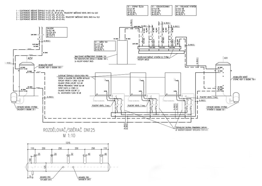
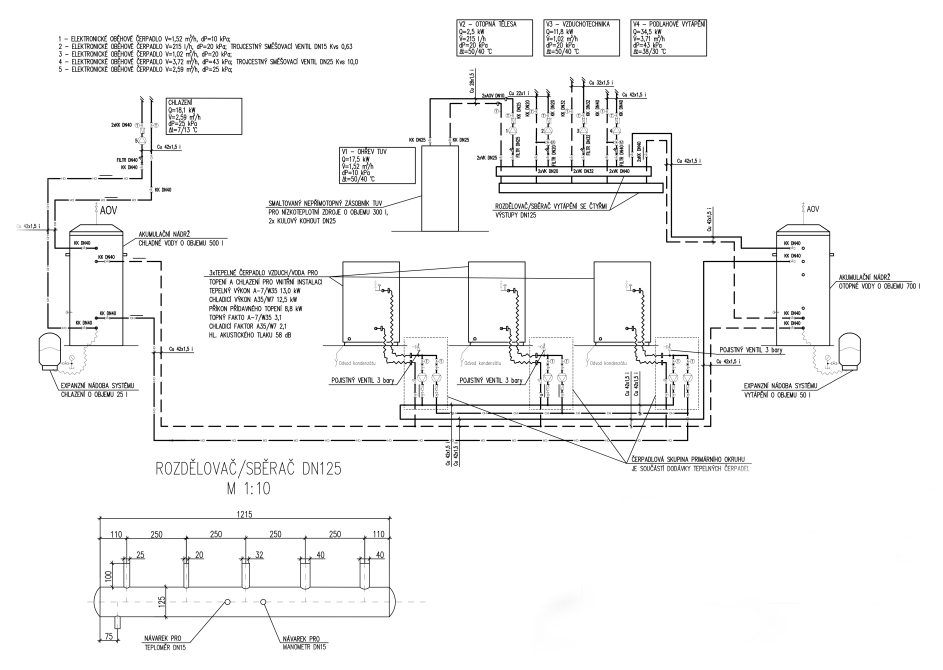
Prostor podkroví je přístupný po schodišti i výtahem a slouží pro technické zázemí objektu (strojovna tepelných čerpadel).

Naše kancelář Růžička a partneři s.r.o. zastávala pozici hlavního inženýra projektu a zajišťovala kompletní koordinaci projektu.

KLIENT


Obec Drahelčice

ARCHITEKTONICKÝ NÁVRH


Starý a partner s.r.o.

SPOLUPRÁCE


Stavebně konstrukční řešení: Statická kancelář BETA, Ing. Jan Tatoušek
Požární řešení: Ing. Jiří Ledinský
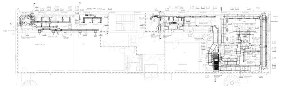
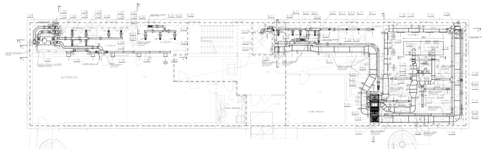
Vzduchotechnika: Projekční kancelář vzduchotechnika-hluk, Ing. Miroslav Rathouský
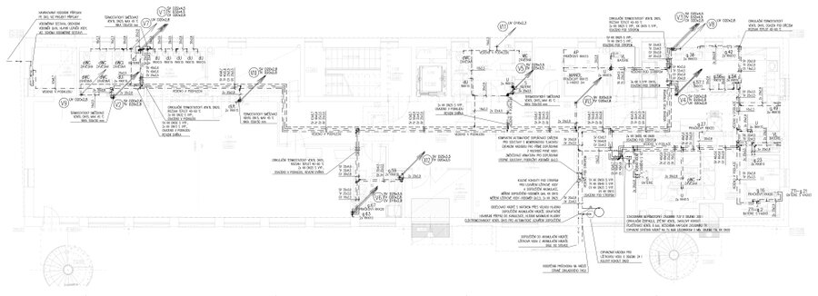
Silnoproudé a slaboproudé elektroinstalace, MaR a hromosvody: ANADA HS s.r.o., Ing. Jaroslav Altera
Gastrotechnika: Dodavatelksé služby-CZ, Ing. Štefan Miko
Vnitřní vybavení a nábytek: LOKKI international s.r.o., Mgr. Eva Sýkorová