HYPERMARKET TESCO MĚLNÍK

2004 DSP, DPS, DSPS

ARCHITEKTONICKÝ NÁVRH: SGL projekt s.r.o.

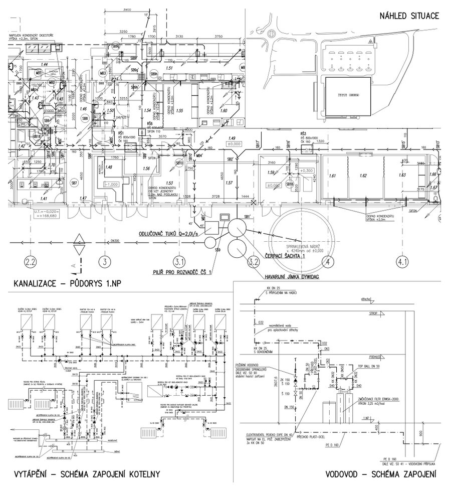
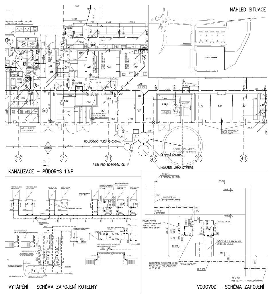
Hypermarket byl projektován a postaven jako přízemní samostatně stojící budova obdélníkového tvaru o prodejní ploše cca 3000 m2, svým průčelím a zákaznickým vstupem orientovaná do ulice Vodárenské. Součástí hypermarketu je obchodní pasáž s 12 obchody, kterou v průběhu projektových a stavebních prací klient požadoval a tuto změnu jsme připravili v rámci výstavby vč. kolaudace v původním termínu. Mezi objektem a touto komunikací je umístěno zákaznické parkoviště pro celkem 190 vozidel (včetně 10-ti pro imobilní zákazníky). Z východní strany budovy jsou navržena parkoviště pro zaměstnance (23 stání). Jednotlivé stavební objekty zahrnovaly kromě samotného objektu hypermarketu také komunikace a dopravní napojení, terénní úpravy včetně zeleně, inženýrské sítě, provozní soubory (výměníková stanice, trafostanice, potravinářské chlazení atd.) a další stavební objekty nezbytné pro realizaci hypermarketu.

Naše kancelář Růžička a partneři s.r.o. byla hlavním koordinátorem projektové části, zajišťovala technickou koordinaci zpracování PD ve všech stupních, přípravu celkové koordinační situace výstavby, projekty profesí vnitřních instalací (vnitřní vodovod, splašková a dešťová kanalizace) a inženýrských sítí (přeložka STL plynovodu, areálový vodovod, splašková a dešťová kanalizace včetně přípojek na veřejné řady).

KLIENT


Tesco Stores ČR a.s., Národní 26, Praha 1

ARCHITEKTONICKÝ NÁVRH


Akad. arch. Jiří Javůrek, SGL projekt s.r.o.

STAVEBNÍ ČÁST


Němec Polák spol. s r.o.

STATIKA


KBS, KOSTA

SPOLUPRÁCE


komunikace: Atelier Promika
VZT: Projekční kancelář Vzduchotechnika – hluk, Ing. K. Havlík
přípojka horkovodu: Envirotech

elektroinstalace: ECF
PBŘ: Ing. arch. P. Syrový

SHZ: Minimax

SOZ: Gradus