DESFOURSKÝ PALÁC

2013 PRŮZKUM

Architektonicko-stavební řešení: SGL projekt s.r.o.

Desfourský palác, byl postaven v pozdně klasicistním slohu palácového typu v letech 1845 – 1847. Josef Kranner jej vystavěl pro hraběte Desfours-Walderode na nově zastavovaných pozemcích v blízkosti rušeného městského opevnění, v těsné blízkosti Těšnovského nádraží. Byla zde kdysi zahrada, skleník a západní křídlo, zbourané kvůli výstavbě budovy “Rudého práva”. Objekt reprezentuje významnou architektonickou etapu s fasádou inspirovanou stylem paláců rané italské renesance a s velmi cennými výtvarně i řemeslně vybavenými interiéry.
Objekt je zapsán v seznamu nemovitých kulturních památek a nachází se v pražské památkové rezervaci, památka UNESCO. V současné době je palác nevyužitý a opuštěný.
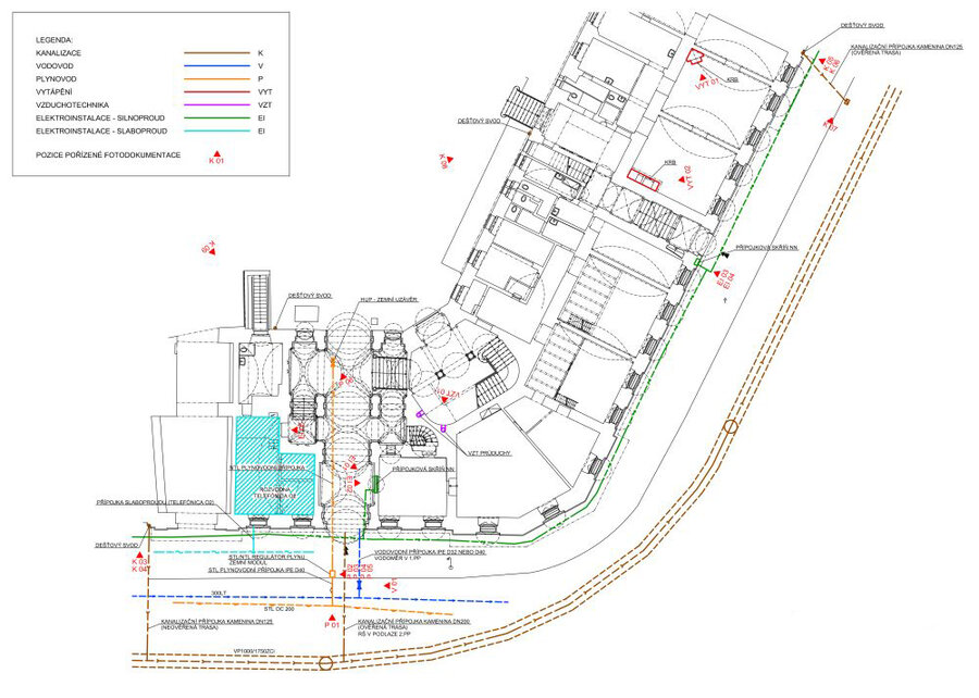
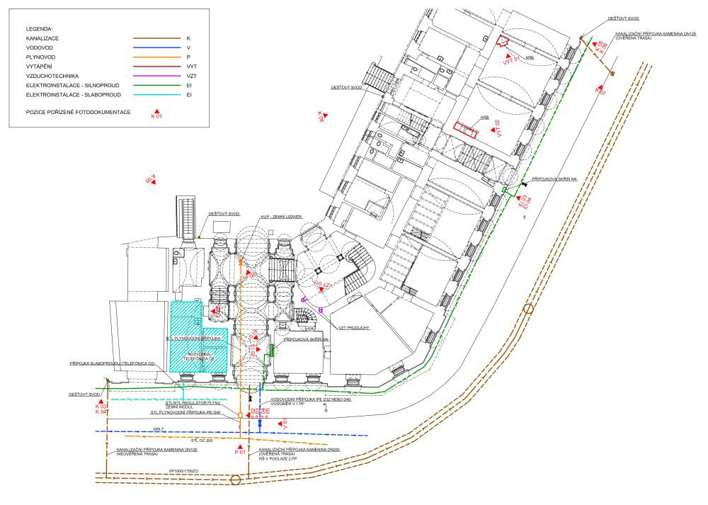
Předmětem průzkumu byly: průzkum technické infrastruktury a technického zařízení budovy, zhodnocení technického stavu budovy, dokumentace správců inženýrských sítí, revize kanalizace, revize komínových průduchu, šachet a průduchů, zmapování archívních materiálů, koncepce technické infrastruktury a technického zařízení budovy dle variant nového využití, koncepce požárně bezpečnostního řešení a odhad investičních nákladů na varianty rekonstrukce.

KLIENT


Hlavní město Praha

ARCHITEKTONICKO-STAVEBNÍ ŘEŠENÍ


SGL projekt s.r.o.

SPOLUPRÁCE


VZT: Projekční kancelář vzduchotechnika – hluk, Ing. Miroslav Rathouský
požárně bezpečnostní řešení: Ater International s.r.o., Ing. Hana Menclová, Ph.D.