BYTOVÝ DŮM U MILOSRDNÝCH

2019 DSP ZSPD DPS 2024 AD

ARCHITEKTONICKÝ NÁVRH: Fránek Architects s.r.o.

Navržený objekt se nachází v historickém centru hlavního města Prahy, mezi Anežským klášterem a budovou Nemocnice Na Františku v místě stávajícího parkoviště. Novostavba bytového domu doplňuje chybějící nároží křížení ulic Kozí a U Milosrdných. Projekt měl velmi dlouhou historii, kdy vydání ÚR trvalo cca 10 let.
V původním návrhu architekta Zděnka Fránka byla okna umístěna tak, že připomínala obličeje. Růžovobílá fasáda byla výtvorem původních italských vlastníků pozemku a investora akce. Podle toho získal projekt přezdívku maršmeloun. Proti stavbě šestipatrové bytovky v Pražské památkové rezervaci na Starém Městě v minulosti protestovaly stovky lidí a řada spolků, jako Spolek občanů a přátel čtvrti Na Františku či iniciativa Občanský monitoring. Vlna kritiky se týkala vnitřní dispozice objektu a jeho barevnosti, jež působila rušivě, čímž se budova prý do historického centra nehodila.
Dokumentace pro územní řízení byla několikrát odvolávána a měněna až k dnešní podobě. Stavební povolení bylo vydáno v roce 2016. Následná změna vydané DSP na současnou podobu budovy byla projektována v letech 2019-21.
Objekt bytového domu U Milosrdných se svou současnou podobou snaží přiblížit pražským reáliím obecně v kontextu jednak širokého vnímání ducha Prahy, tak i lokální inspirací blízkého okolí. Inspirace textilem a tkaninami pražské historie je patrná nejen v konceptu celého výrazu budovy tak i v detailech.

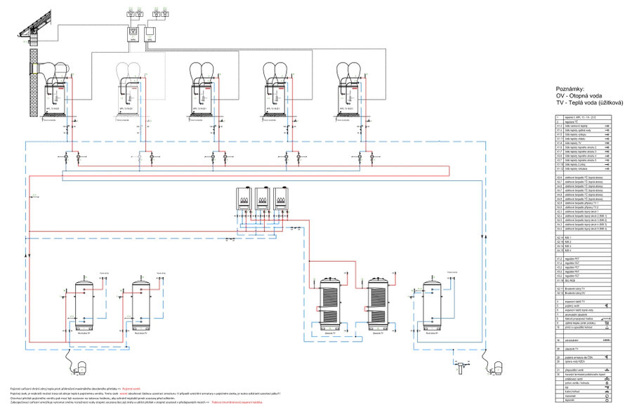
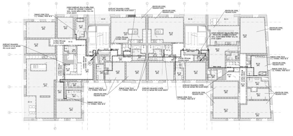
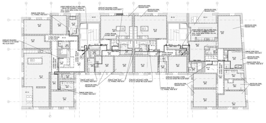
Naše kancelář Růžička a partneři s.r.o. zajišťovala projektovou dokumentaci inženýrských sítí, projekty TZB i koordinaci profesí v objektu.

KLIENT


Praga Progetti e Investimenti, spol. s.r.o., stupeň DSP
V Invest, s.r.o., stupeň ZSPD, DPS, AD

ARCHITEKTONICKÝ NÁVRH


Fránek Architects s.r.o.

PROJEKTOVÁNÍ A INŽENÝRING STAVEB


Prins spol. s.r.o.

STAVEBNÍ ŘEŠENÍ


Prins spol. s.r.o.
Ofstone s.r.o.