AAA ALTO CIBULKJA

2017 DSP 2018 DPS

Generální projektant: NĚMEC POLÁK, s.r.o.

Sedmipodlažní bytový dům, který má sedm samostatných vchodů se nachází v bývalém areálu firmy Meopta u ulice Naskové v Košířích. Nový botový objekt nahradil stávající nízkopodlažní provizorní objekty mezi budovou Meopty a lesoparkem Cibulka v blízkosti přírodní památky Vidoule.
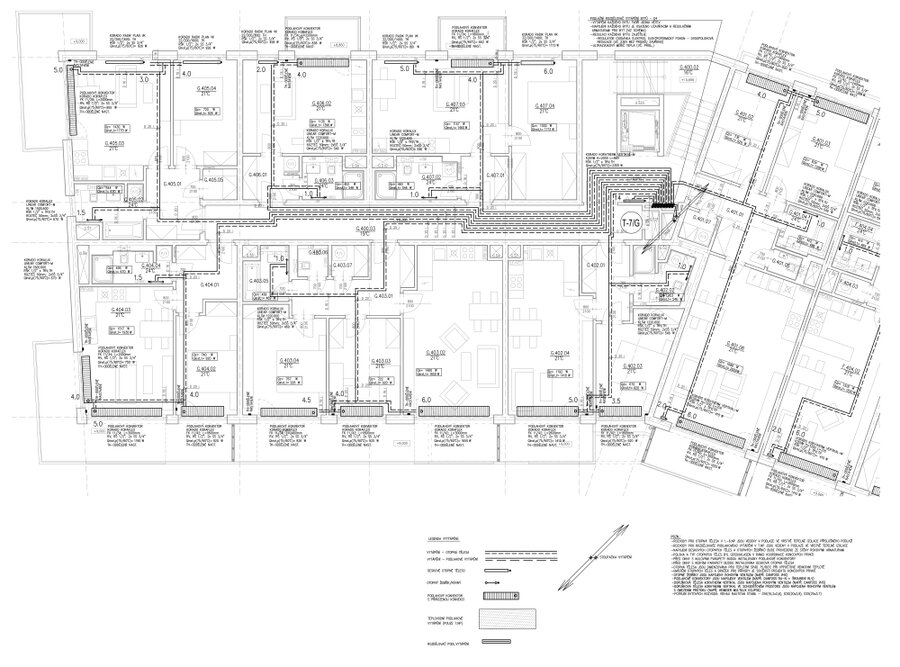
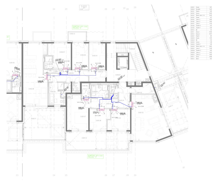
V sedmi nadzemních podlažích je navrženo 250 bytů různých velikostí (od 29 m² po 156 m²), všechny byty v přízemí budovy mají vlastní předzahrádku, ve vyšších nadzemních podlažích balkón či terasu. V podzemním podlaží jsou umístěny garáže, technické zázemí a sklepní kóje. Strop nad podzemím mimo obrys nadzemních podlaží je řešen jako zelená střecha s předzahrádkami, parkovou úpravou a vodním prvkem.
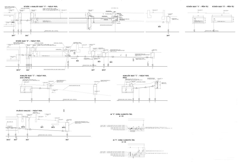
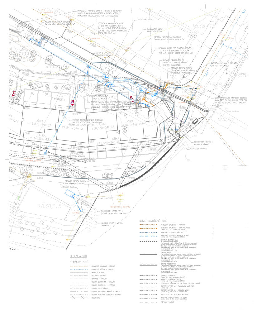
Objekt na geologicky složitém pozemku uzavřeném z jedné strany přírodním parkem se skalnatým profilem a z druhé strany jinou budovou měl složité podmínky pro likvidaci dešťových vod. V návrhu bylo uplatněno technické řešení pomocí akumulace srážkových vod v konstrukci střešního pláště.

Naše kancelář Růžička a partneři s.r.o. zajišťovala projektovou dokumentaci profesí TZB (kanalizace, vodovod, plynovod, vytápění a chlazení) vč. přípojek inženýrských sítí.

INVESTOR


YIT Stavo, s.r.o.

GENERÁLNÍ DODAVATEL STAVBY


STEP, s.r.o.

GENERÁLNÍ PROJEKTANT


NĚMEC POLÁK, s.r.o.

STAVEBNÍ ČÁST


NĚMEC POLÁK, spol. s r.o.

SPOLUPRÁCE


chlazení: Projekční kancelář
vzduchotechnika: hluk, Ing. Miroslav Rathouský